Skip til hoved indholdet MinSide MinSide

5.994 kr. pr.md

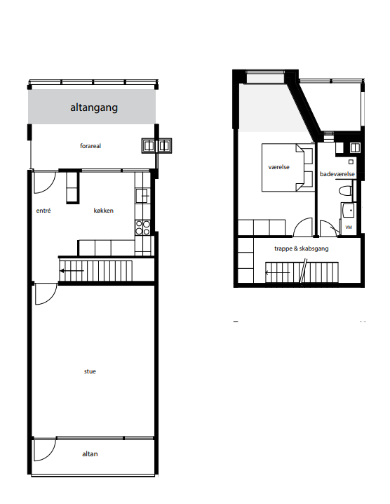
Lejligheder | 2 vær. | 110 m² | Indskud: 30.690 kr.

På Tove Ditlevsens Vej i Vejgaard ligger vores afdeling i et roligt og familievenligt kvarter med store grønne arealer og legepladser. I nærområdet finder du både skole og flere børnehaver, hvilket gør hverdagen tryg og nem for børnefamilier.

Kvarteret er også et attraktivt valg for dig, der ønsker at bo lidt uden for Aalborg Centrum i et hyggeligt og velfungerende område. Med gode transportforbindelser, hurtig tilkørsel til motorvejen og indkøbsmuligheder tæt på, får du en fleksibel hverdag med nem forbindelse til både byliv og naturoplevelser. Universitetet i Aalborg Øst ligger desuden tæt på, hvilket gør området særligt praktisk for studerende.

Faciliteter

Fællesfaciliteter
Ja

Fælleslokale, tørretumblerrum, fællesgårdrum, cykkelkælder, P-pladser, legepladser

Internet/TV
Ja

Individuelt valg

Husdyr
Ja

2 stk. indekatte

Elevator

Ja

Hårde hvidevarer
Ja

Kølefryseskab, kogeplade, indbygningsovn, vaskemaskine

Garager/carporte
Ja

Der er mulighed for at leje garage og ekstra kælderrum

Ladestander

Nej

Tilmeld nyhedsbrev

Plus Bolig | Når du vil leje

Alexander Foss Gade 7, 9000 Aalborg

CVR nr. 27422039

Telefon: +45 96 31 41 51
E-mail: info@plusbolig.dk

Genveje